Pharmaceutical & Sterile Processes

CE Sea Blue
EC Sea Blue
CE
Reach
RoHS
API Certificate

Agglomerator

Agglomeration in food processing applications include table salt, dispersible milk powder and soup mix, instant chocolate mix, beverage powder, compacted cubes for nutritional-intervention program, health bars employing expanded/puffed cereals etc.

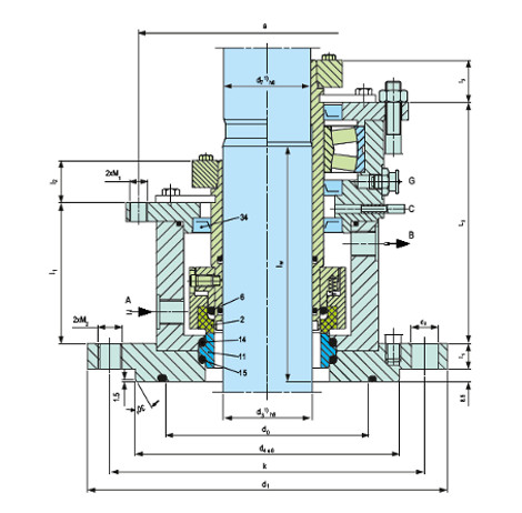
Seal Type: UR-D/80

Media Dairy Products
RPM 35
Temperature 1250 C
Pressure Vacuum to 4 bar

Spherical Dryer

The Spherical Dryer is a highly engineered and precision fabricated vacuum dryer designed to utilize heat input, effective mixing and vacuum for product drying. It can be employed for dedicated or multi-purpose applications and it provides the best in product quality, total discharge, cGMP production, cleanability and limited operator exposure.

Seal Type:BSMRL-D/85

Media Pharmaceutical Powder
RPM 850
Temperature 1800 C
Pressure Upto 5 bar

Eccentric Pump

Seal Type: SBJ92/43

Media Dairy Products
RPM 3200
Temperature 1400 C
Pressure 14 Bar

Sterile Pump

Seal Type: SBJ92/35

Media Dairy Products
RPM 2500
Temperature 1100 C
Pressure 12 Bar

Centrifugal Pump

Centrifugal Pumps are most widely employed pumps in the Oil & Gas Field and many such process industries, to transfer highly abrasive fluids like crude oil.

Seal Type: SBJ92/45

Media Liquid Foods
RPM 3000
Temperature 800 C
Pressure 18 Bar

Filter Dryer

A filter dryer is an application for the process equipment which is employed during the filtration and drying phase of a pharmaceutical, bio pharmaceutical or chemical process for an active pharmaceutical ingredient (API) or other compounds production. The industries like sterile processes and pharmaceutical requires decisive and specialized mechanical seal on the processing equipment or machinery, they are designed precisely to avoid the formation of deposits that could cause bacterial contamination of the medium.

Seal Type: U154 KL-D/125

Media Pharmecutical Powder
RPM 50
Temperature 1400 C
Pressure Vacuum to 6 bar


Pharmaceutical & Sterile Processes

In addition to meeting technical requirements a seal has to display many other characteristics in connection with cleanliness, health and general legislation. These include for example materials which are compatible with food, smooth and abrasion-proof surfaces which are easy to clean, complete units which can be sterilized and cleaned without having to be dismantled (SIP/CIP). Sealmatic mechanical seals have been used for such demanding applications with great success in sterile processes. Our range of mechanical seals includes a broad spectrum of high-quality, specifically optimized sealing solutions ranging from standard solutions to specialized system solutions for nearly any application in the pharmaceutical industry.